Zurück zur übergeordneten Seite
Campuskrautkraemer | Logo

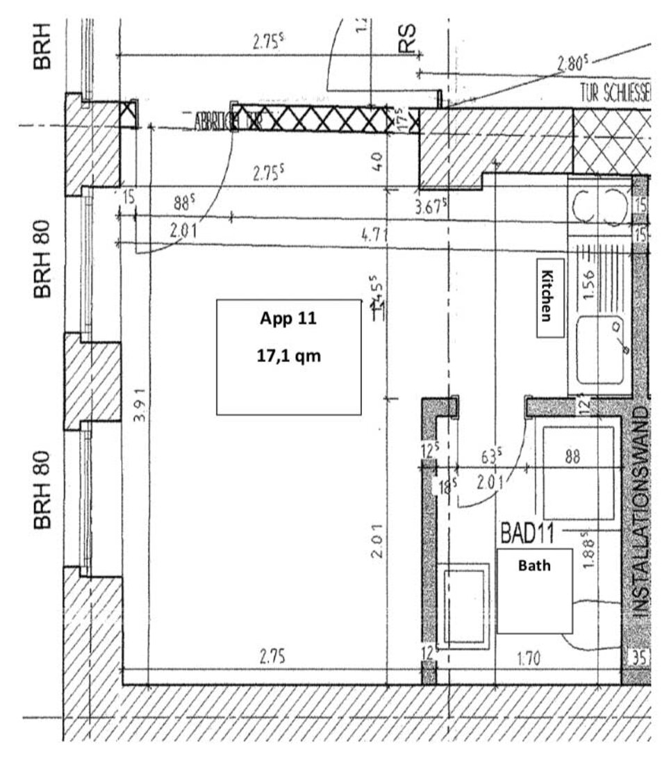
Appartement 11

Reserviert für Austauschstudierende

Lage: Löhrstraße 41a, 1. Obergeschoss (1. OG)
Größe: 17,1 qm
Mietpreis: 1600,00€ pro Semester

Ausstattung Küche: 

  • Spüle
  • Herd
  • Kühlschrank
  • Mikrowelle

Ausstattung Zimmer: 

  • Duschbad mit kleinem Schrank
  • mind. 1 Regal und 2 Schränke
  • Schreibtisch und Schreibtischstuhl
  • Bistrotisch mit wahlweise 1-2 Stühlen

Inventar Zimmer: 

8 x Kleiderbügel, 1 x Matrazenschoner, 2 x Kissen (groß & klein), 1 x Oberbett (Bettdecke), 1 x Mikrofaserdecke, 2 x Bettwäsche (inkl. Spanbetttuch), 1 x Nachttischlampe, 1 x Schreibtischlampe, 1 x Papierkorb, 1 x Badezimmermülleimer, 3 x Steckdosenleiste, Reinigungsmittel, Eimer, Mop, Kehrschaufel mit Besen, 1 x Kochtopf klein, 1 x Kochtopf mittel, 1 x Pfanne, 2 x Kuchenteller, 2 x Essteller, 2 x Suppenteller, 2 x Tasse, 2 x Untertasse, 1 x Schüssel, 1 x Vase, 2 x Wasserglas, Besteck, Pfannenwender, Dosen- & Flaschenöffner , 2 x Badetuch, 2 x Handtuch, 3 x Geschirrtuch, 1 x Wasserkocher, 1 x Kaffeebereiter, Föhn , Wäschekorb

Campuskrautkraemer | Logo